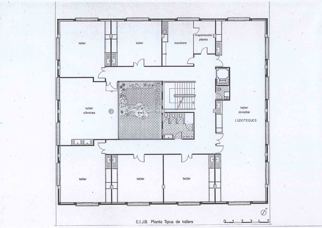
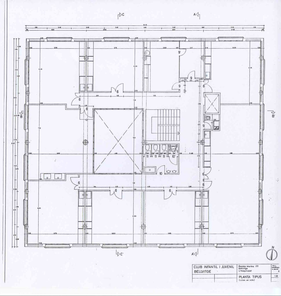
Centre d'esplai "Club Infantil i Juvenil Belvitge" (CIJB), L'Hospitalet de Llobregat

Promotor: Fundació Catalana de l’Esplai

1978

Superfície: 2.112 m²st
 

Col·laboració amb: Anna Calvera, dissenyadora gràfica

Primer premi del concurs “La Arquitectura y el Urbanismo ideal para el niño, convocat per UNICEF, 1981

Es tracta d’un edifici dedicat a equipament socio-cultural per als infants i joves del barri de Bellvitge.

El projecte va sorgir per la necessitat del barri d’equipaments i espais lliures i, especialment pels joves, per tenir un lloc on trobar-se i realitzar activitats diverses durant el seu temps lliure.