Projecte d'execució. Escola nàutica a Port de Sau, Vilanova de Sau

Promotor: Associació Catalana de Cases de Colònies

1998

Aquest projecte desenvolupa la previsió feta al Pla Especial de Can Mateu, d’implantar una escola nàutica a l’edifici de l’embarcador, a la vora del pantà de Sau.

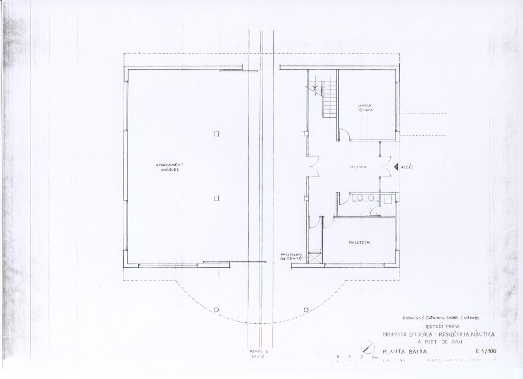
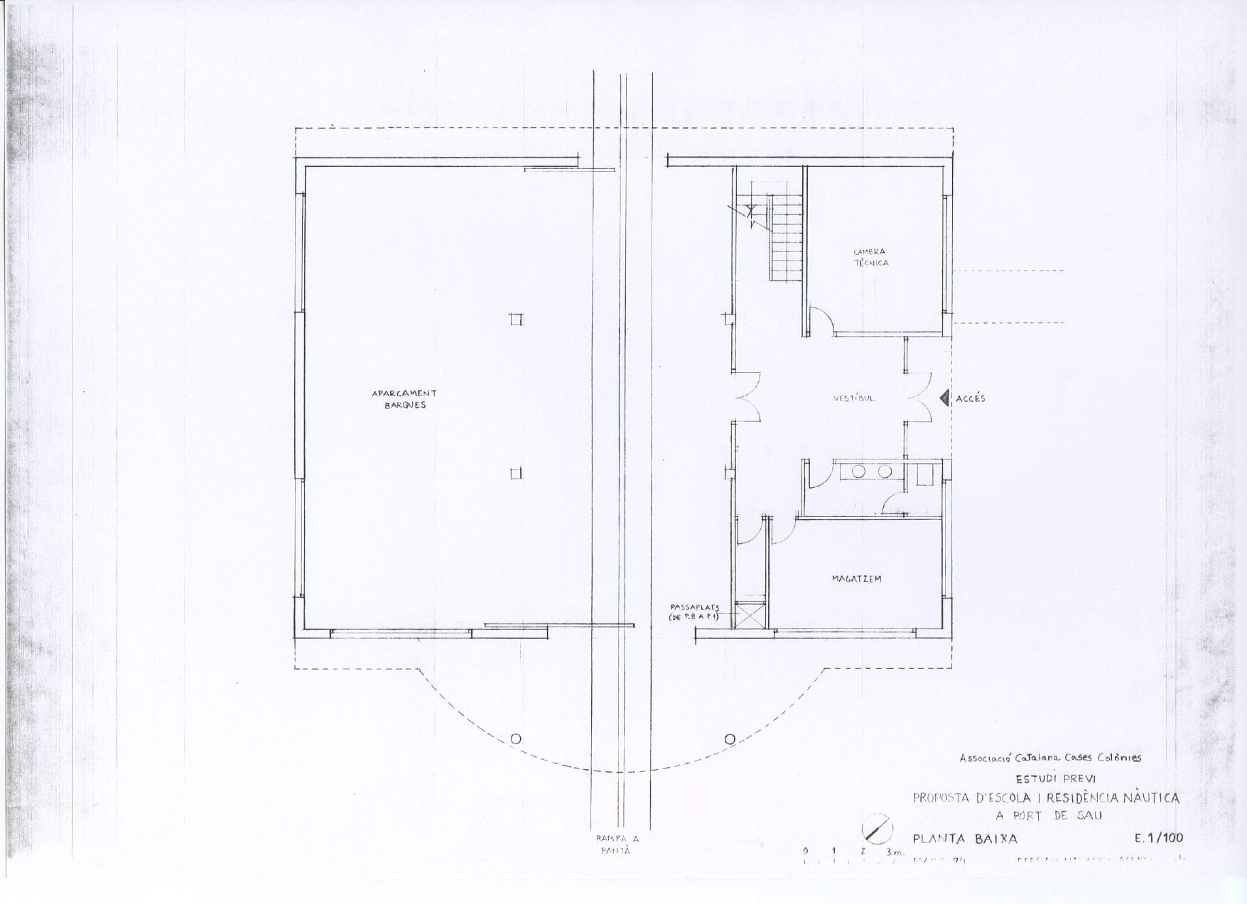
El projecte consisteix en la reforma i ampliació de l’embarcador per solucionar els problemes constructius i estructurals, i adaptar i ampliar la superfície actual per al nou ús a que se’l destina.

Aquest embarcador pertany a un equipament complex anomenat Port de Sau, format per diverses instal·lacions i àrees d’activitats, i que ocupa la finca Can Mateu.

La finca pertany al terme municipal de Vilanova de Sau i és delimitada al nord pel pantà de Sau.

L’embarcador està situat al final del camí d’accés a la finca i mirant al pantà i disposa d’una rampa que permet arrossegar les barques fins l’aigua. Aquest equipament i la seva situació immillorable el fan molt adient per a la realització d’activitats nàutiques.