Projecte d'execució de la rehabilitació de la finca del carrer Sant Honorat núm 5, Barcelona. Per ubicar el servei de prevenció, orientació i tractament de toxicomanies (SPOTT) de la Diputació de Barcelona

Promotor: Servei de Construccions Civils de la Diputació de Barcelona

Abril 1997

Superfície: 1.212,45 m²st.

El carrer Sant Honorat, al qual es troba l’edifici del SPOTT., està dins el barri gòtic de Barcelona i coincideix amb el límit oriental del Call medieval. Espacialment està dominat per l’extensa façana lateral del Palau de la Generalitat.

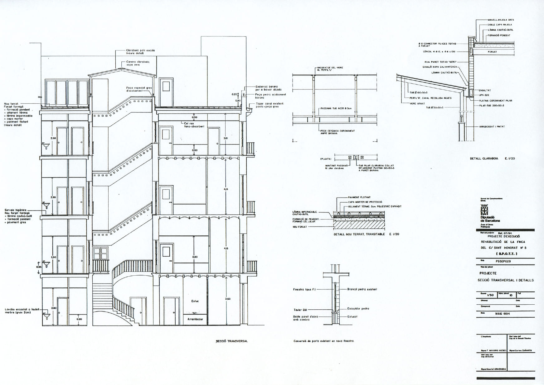
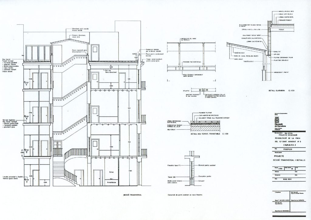
L’edifici de la finca núm. 5 és del segle XVIII i està inclòs al Catàleg del Patrimoni Històric-Artístic de la Ciutat de Barcelona.

El projecte ha tingut en compte tres aspectes:

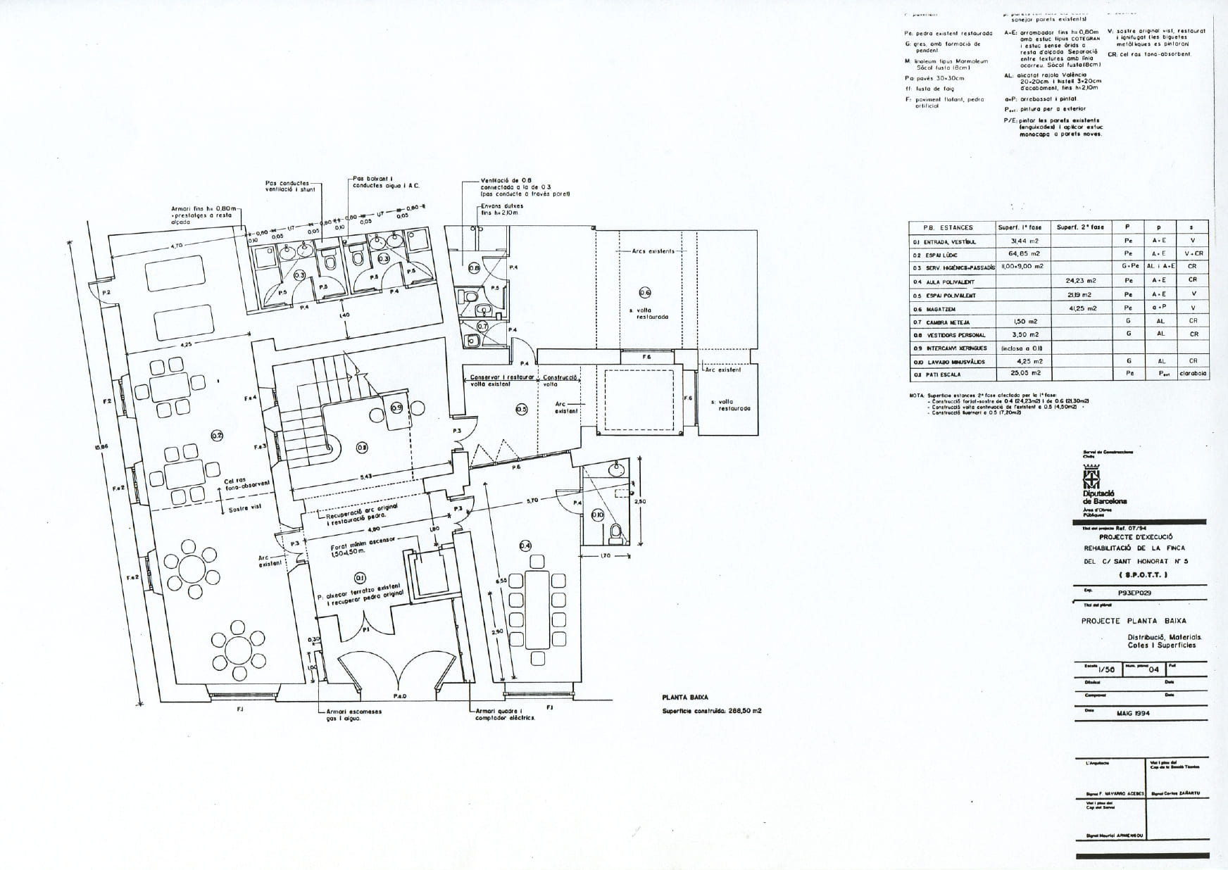
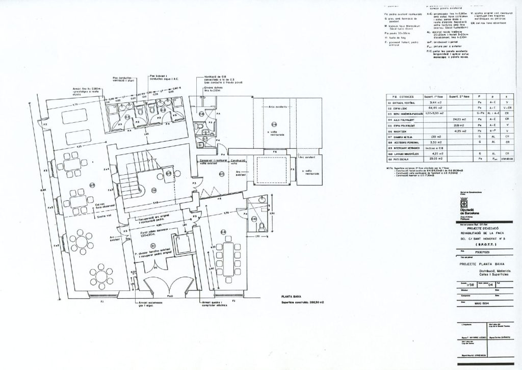
  • Adaptació funcional de l’edifici a un servei públic que fa més de 10 anys que funciona a aquest local: atenció i tractament de toxicomanies, des de l’acollida fins al tractament, oferint tant l’assistència de professionals com espais per a l’esbarjo.
  • Adaptació estructural de l’estructura portant de l’edifici per a suportar les càrregues que ha d’estar sotmesa.
  • Adaptació tècnica a les condicions imposades per la normativa actual.