Reforma i adaptació de la sala de La Societat, La Torre de l'Espanyol

Promotor: Ajuntament de La Torre de l’Espanyol

Març 2000

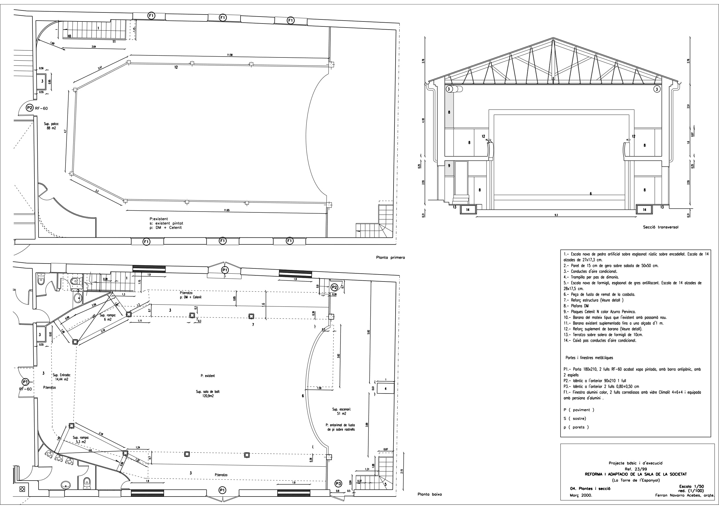
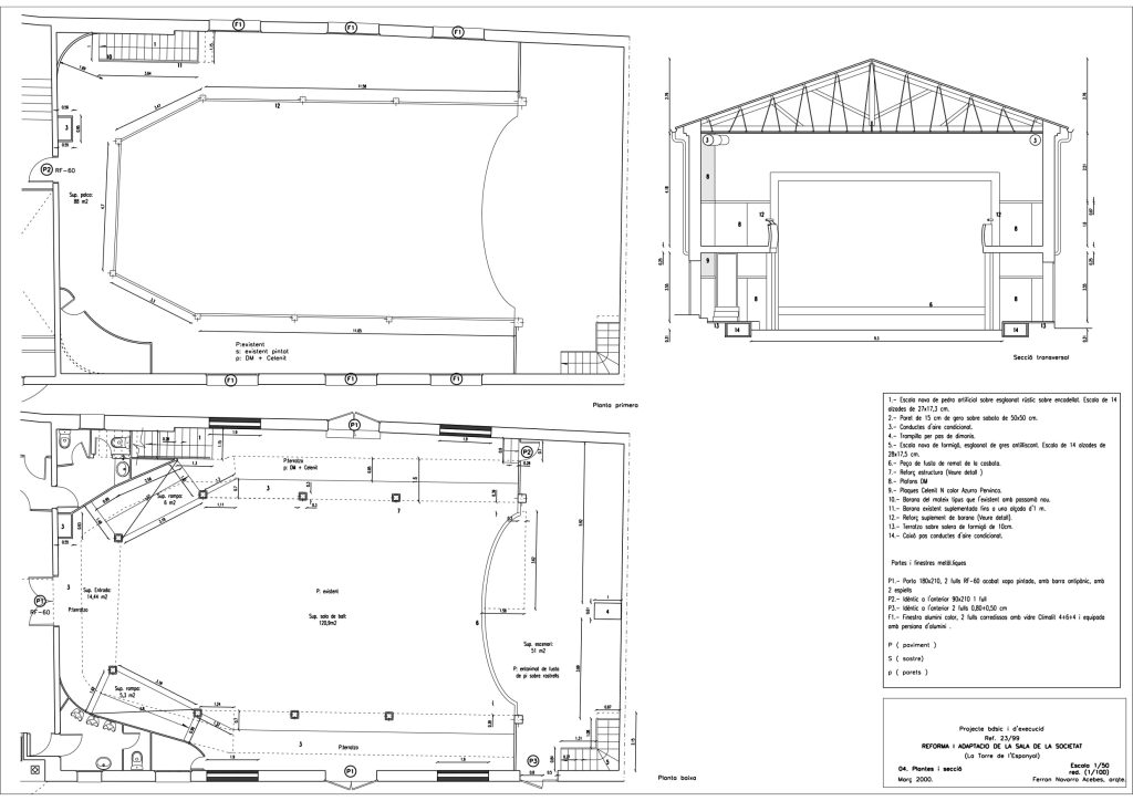
Superfície: Planta Baixa (185,60 m2 ) Planta 1(8,00 m) Escenari: (51,00 m) Soterrani(42,25 m2 )

El projecte es desenvolupa a la Sala de la Societat del municipi de La Torre de l’Espanyol (Ribera d’Ebre), en el que seria la sala de teatre i espectacles.

Objecte

Aquest projecte es redacta a fi i efecte de definir les mínimes actuacions que cal fer a la sala per tal de:

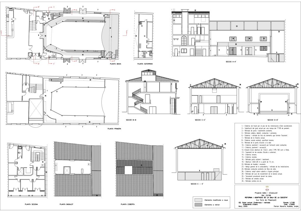
  • Resoldre els problemes d’estanqueïtat i d’aïllament que presenta la coberta, feta amb plaques ondulades de fibrociment i amb canalons interiors.
  • L’observació visual realitzada a l’estructura portant de la coberta, formada per encavallades i bigues de fusta, fa pensar que aquesta és en bon estat, tot i que necessita d’una neteja i d’una imprimació insecticida i fungicida, així com d’un repàs de nusos i dels tirants que suporten el cel ras.
  • Millorar les dues façanes de l’edifici, canviant les portes i les finestres i pintant posteriorment.
  • Substituir l’actual sistema de calefacció per un sistema d’aire condicionat, mitjançant bomba de calor, retirant l’actual caldera i dipòsit de gasoil de sota l’escenari, així com tota la instal·lació existent.
  • Adaptar la instal·lació elèctrica a la normativa vigent.
  • Adaptar les portes i itineraris d’evacuació a la normativa sobre protecció contra incendis.
  • Condicionar l’escenari i els vestidors situats sota d’aquest, de manera que compleixi la normativa contra incendis i millorin les condicions de ventilació i d’evacuació.
  • Millorar les condicions acústiques de la sala, revestint les parets amb material absorbent.
  • Millorar la il·luminació general i escènica.
  • Pintar tot l’interior.

Solució proposada.

A la planta soterrani s’actuarà de manera que s’aprofitin més bé els espais i dotant els vestuaris de dutxes i bany. L’espai es dividirà en dos vestuaris amb dutxa independent a cada un. Es situarà un distribuïdor que comunicarà aquests dos vestuaris amb el bany i les escales d’accés.

S’intentarà aprofitar el mur de càrrega actual de la corbata de l’escenari per tal de recolzar el nou forjat de formigó.

L’actuació a l’escenari es basa en el canvi de forjat, retirant les instal·lacions i adequant les escales que uneixen aquest amb els vestidors, fent que s’aprofiti molt més els “hombros” de l’escenari. Pel que fa  a les escales d’accés a l’escenari des de la sala es fan recular, fent un graonat més agradable, i deslliurant totalment “l’hombro” d’aquesta banda de l’escenari.

Pel que fa a la sala d’espectacles es milloraran les seves condicions acústiques mitjançant panells acústics. En la totalitat de la sala es col·locaran uns arrambadors fins a 1,6 m., de fusta DM, rematat amb penja-robes en filera.

A la planta baixa se substituirà el graó d’accés al canvi de nivell lateral per dues rampes del 7,15 % de pendent, i s’ampliarà l’amplada de la sala reculant 70 cm el desnivell. Es reforçaran els pilars de l’estructura de suport de la planta primera mitjançant perfils metàl·lics.

Pel que fa a la planta primera s’adequaran les baranes que hi ha augmentant-les fins a 1 m. d’alçada.

En la planta coberta de la part de l’edifici reformat, la coberta de sobre el badalot serà retirada per a fer possible la col·locació de la maquinària de l’aire condicionat, creant un accés a coberta des del badalot.

A la façana principal es tapiaran les obertures innecessàries i la porta d’accés a l’escenari  es mourà i ampliarà fins a fer una porta de doble full de 80+50 cm. Els acabats seran de pedra calcària l’arrambador, i pintat blanc la resta.

La façana posterior tindrà els mateixos acabats. També es tapiaran les obertures innecessàries, i es canviarà la fusteria de les obertures restants, així com les seves proteccions.