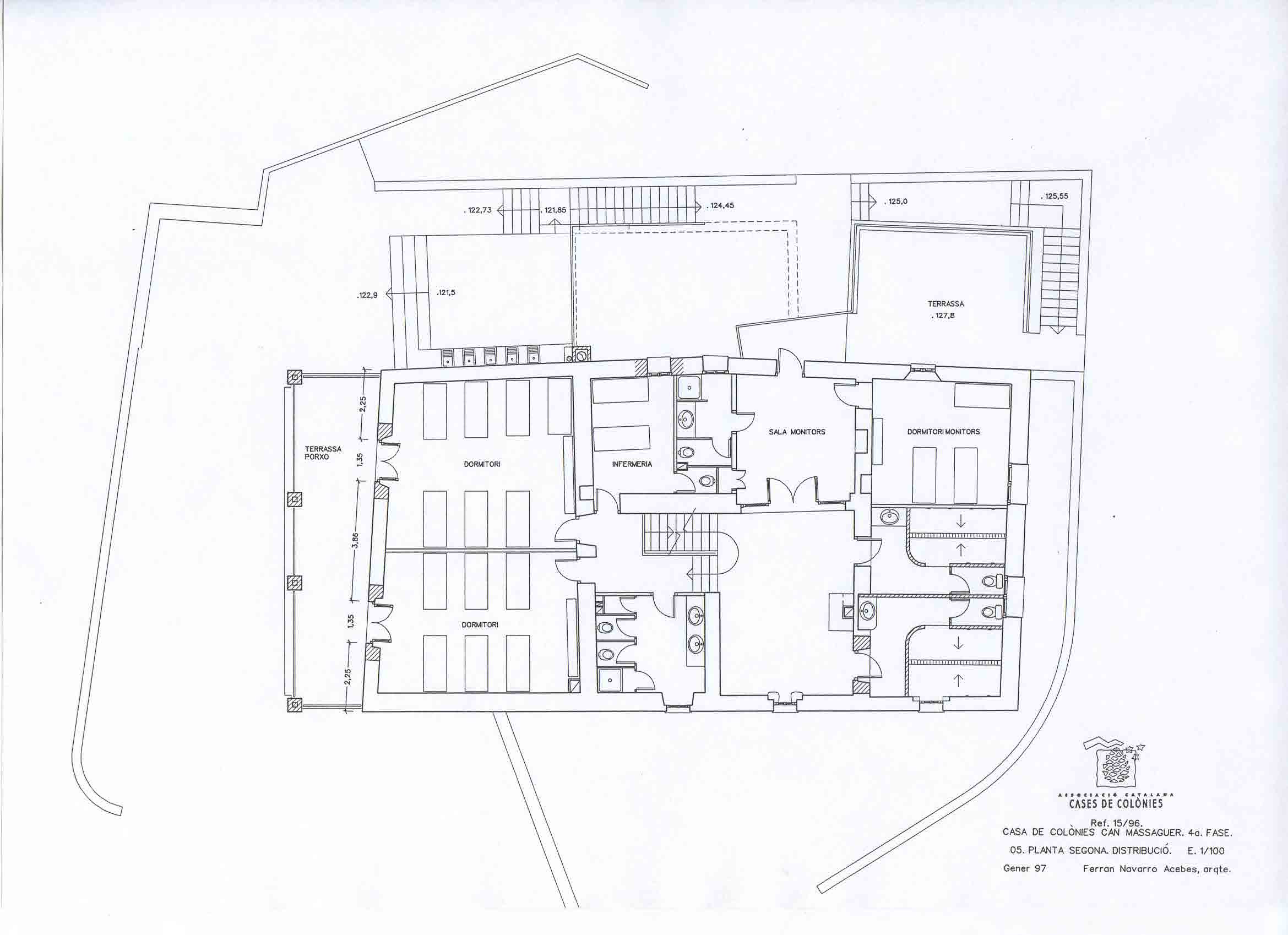
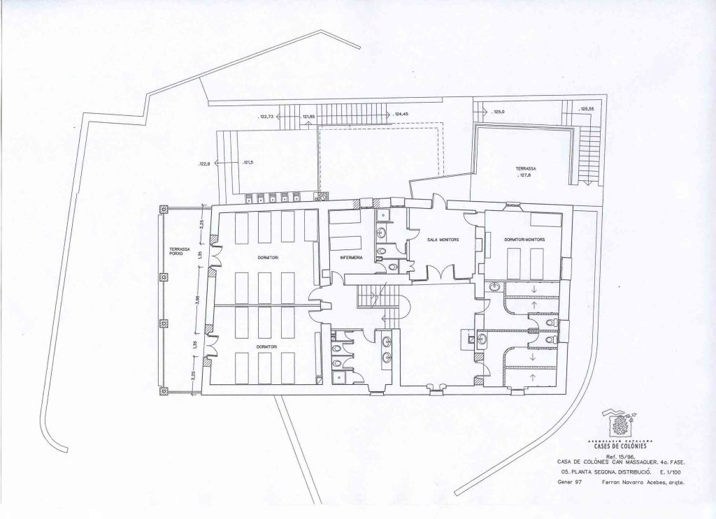
Projecte d'execució casa de colònies "Can Massaguer", Sant Feliu de Buixalleu

Promotor: Associació Catalana de Cases de Colònies

1984-1997

Superfície: 710 m2st

Can Massaguer és una masia situada al peu de la carretera de Breda a Arbúcies, dins el terme municipal de St. Feliu de Buixalleu, fora del nucli urbà i dins del Parc Natural del Montseny.

L’objecte del projecte va ser habilitar la casa per a la seva utilització com a casa de colònies durant tot l’any. Es va tenir en compte el que estableixen les Normes Subsidiàries de Planejament de St. Feliu de Buixalleu, pel que fa a les característiques arquitectòniques, històriques i tipològiques de la masia i el seu entorn.

El projecte s’ha anat realitzant en quatre fases, de tal manera que sempre ha estat possible el funcionament de la casa. Cal destacar dues operacions que, per la seva envergadura constitueixen les fases més importants: la creació del nou nucli d’escales, que comunica cinc nivells diferents, i la construcció de la nova coberta, usant materials tradicionals.