Projecte bàsic de "Els Porxos", casa de colònies a la finca Can Mateu, Vilanova de Sau

Promotor: Associació Catalana de Cases de Colònies

Novembre 1985

Superfície: 464 m2st

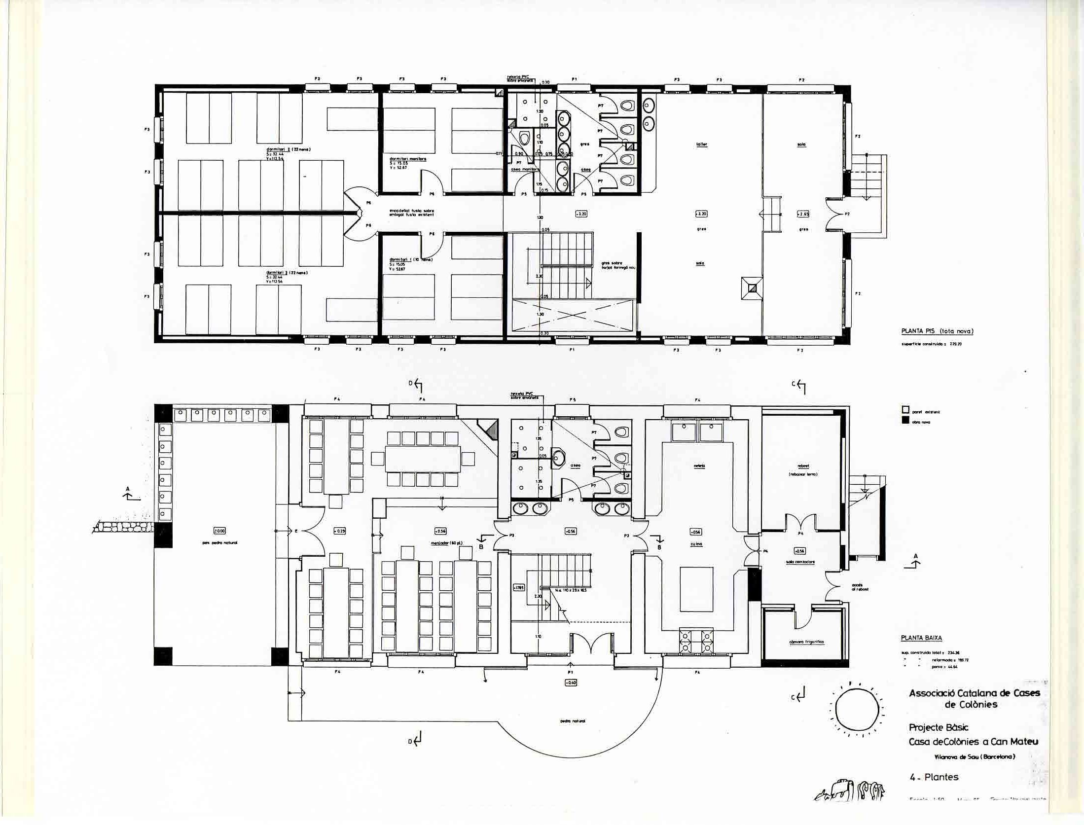
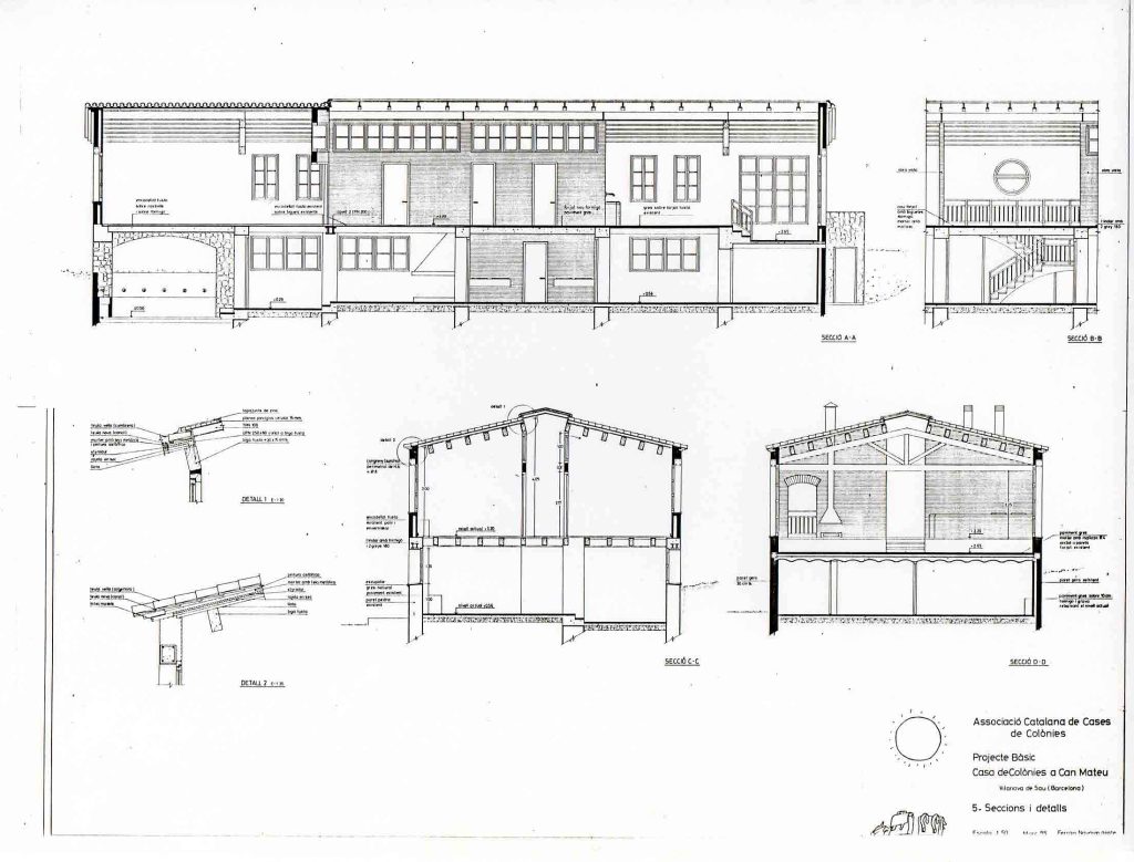
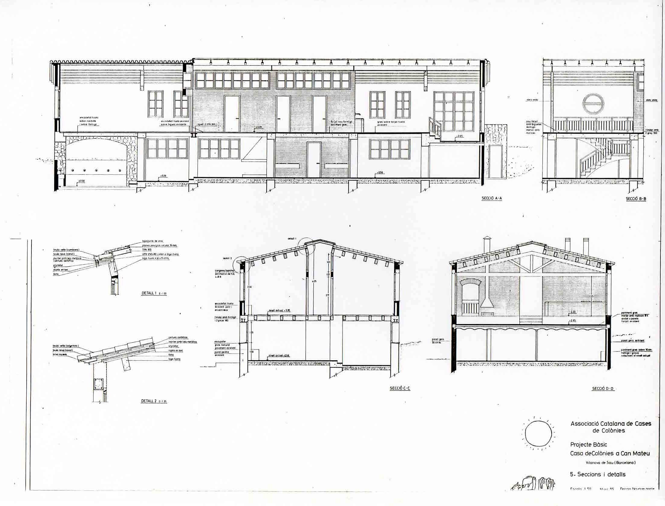
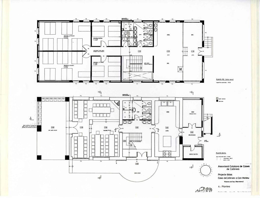
La casa actual es va construir aprofitant un edifici existent que era destinat a quadra de la finca. Es va reformar la planta baixa, sense modificar les parets de pedra existents, es va ampliar amb una àrea porxada al cantó llevant i es va fer de nou la planta pis.

La finca, situada a la riba del pantà de Sau, també anomenada “Port de Sau”, és un equipament complex format per diverses instal·lacions i àrees d’activitats (cases de colònies, zones d’acampada, piscina, embarcador…).